Abbildung ähnlich
FORMAT

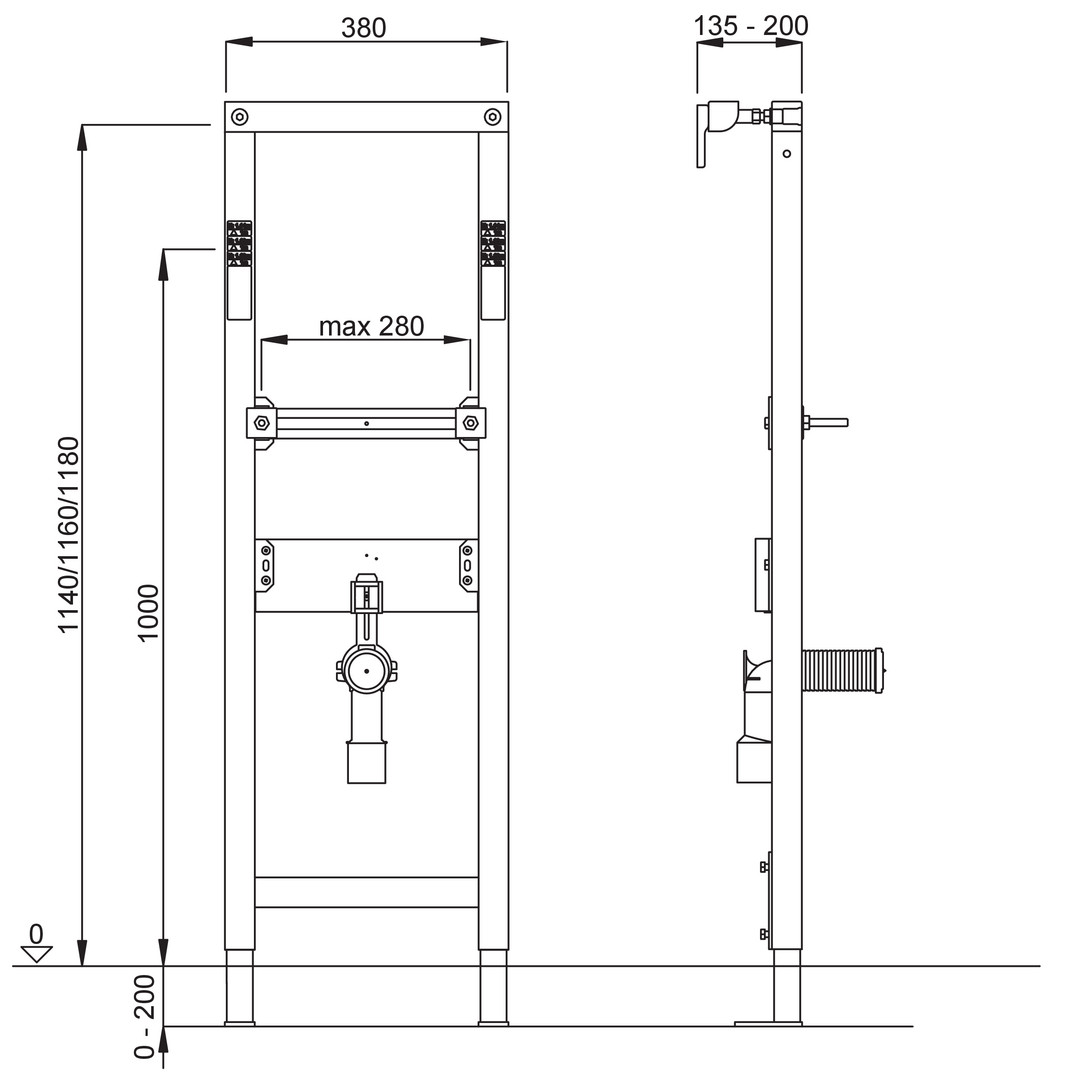
FORMAT Tec WT-Element Höhe 1180 mm

FH14010040001 8050452784
auf Anfrage
je 1 STCK
Preis und Verfügbarkeiten nach Anmeldung

Folgeartikel

Dieser wird automatisch Ihrem Warenkorb hinzugefügt.

Verkaufsdaten

Mindestbestellmenge 1 STCK
Bestellschritt 1 STCK

Beschreibung

als Vorwandelement im Trockenbau oder in einer Ständerwand einsetzbar, verschweißte selbsttragende Konstruktion aus pulverbeschichtetem C-Profil 40 x 40 mm, vormontierte Wandhalter und verstellbare Fußstützen 0-20 cm, Befestigungsgewindestangen M10 (Abstandsmaß bis 280 mm), in der Höhe verstellbare Halteplatte für Wandscheiben, in der Höhe verstell- und schwenkbarer Ablaufbogen DN 40/50 mit Gummidichtung für Anschlussrohre DN 32 und DN 40, Schutzkappe für Rohbaumontage und Befestigungsmaterial, ohne Beplankung, B/T: 380/135-200 mm

Merkmale

Produktklasse Waschtisch-Element
Serie FORMAT Tec
Höhe 1180 mm
Internet Link https://www.format.eu/produkt/FH14010040001